



Duplex modern de vanzare in Cartierul Gheorgheni – o proprietate premium, spatioasa si luminoasa, ideala pentru cei care cauta confort si exclusivitate.
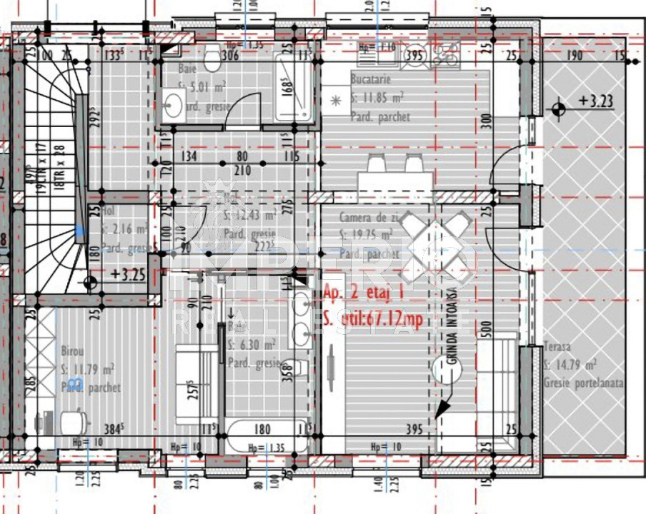
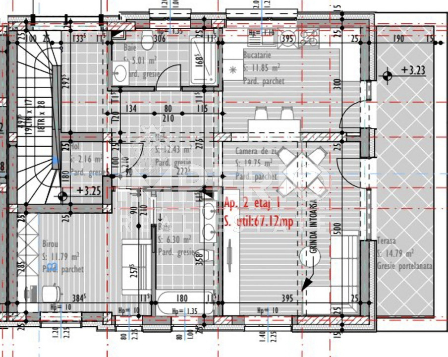
Va prezentam un duplex impresionant, construit pe regim de inaltime D+P+E+ER, cu o suprafata utila de 246,49 mp si teren de 238 mp, aflat la stadiul de semifinisat – solutia perfecta pentru a-l personaliza dupa stilul dumneavoastra. Proprietatea beneficiaza de 4 parcari exterioare si 3 locuri de parcare in garajul subteran, oferind astfel confort deplin pentru o familie moderna.
Demisolul include 3 garaje, o camera tehnica si o pivnita generoasa.
Parterul este gandit pentru relaxare si functionalitate: living spatios, bucatarie luminoasa, birou, 2 bai si un hol amplu.
Etajul 1 ofera 3 camere confortabile, 2 bai si un balcon cu vedere deschisa.
Etajul retras pune la dispozitie 2 camere, 1 baie si o terasa spectaculoasa de 22,44 mp – locul ideal pentru momente de relaxare sau socializare in aer liber.
Proprietatea dispune de CF, astfel incat poate fi achizitionata imediat fara niciun impediment.
Un duplex modern, situat intr-o zona premium, cu un design versatil si multiple avantaje – o alegere excelenta pentru cei care apreciaza spatiul, linistea si calitatea.
Pentru detalii si vizionari, nu ezitati sa ne contactati.