







Se ofera spre vanzare teren intr-o zona deosebit de frumoasa din Faget, ideala pentru constructia unei case individuale. Terenul are suprafata de 1417 mp si front stradal de 28 m, oferind un amplasament generos si bine proportionat.
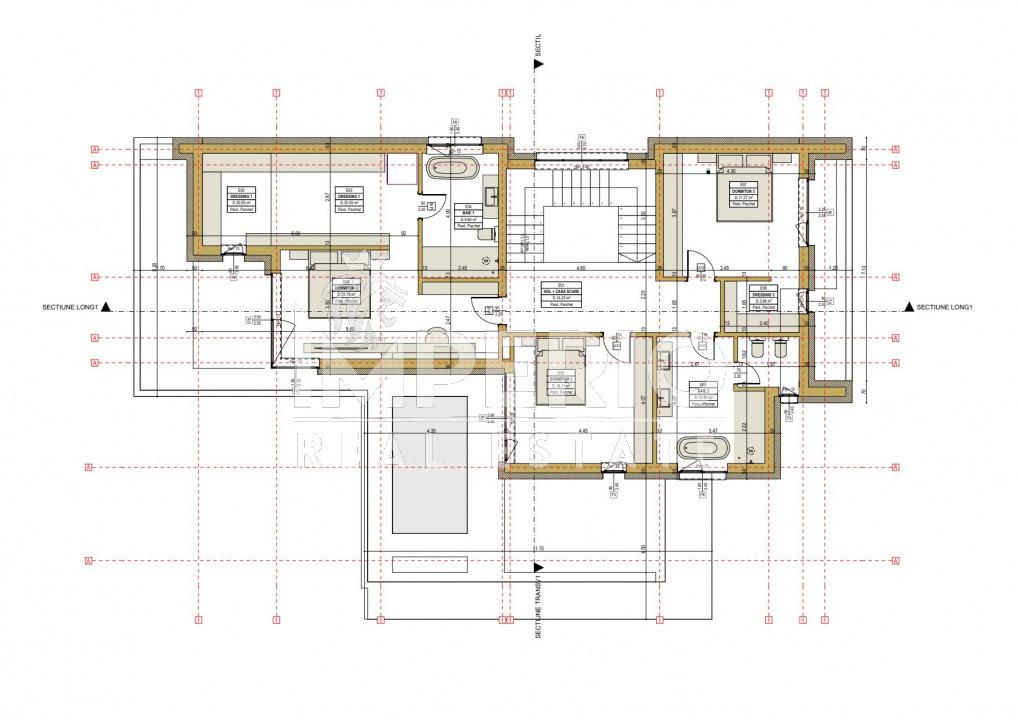
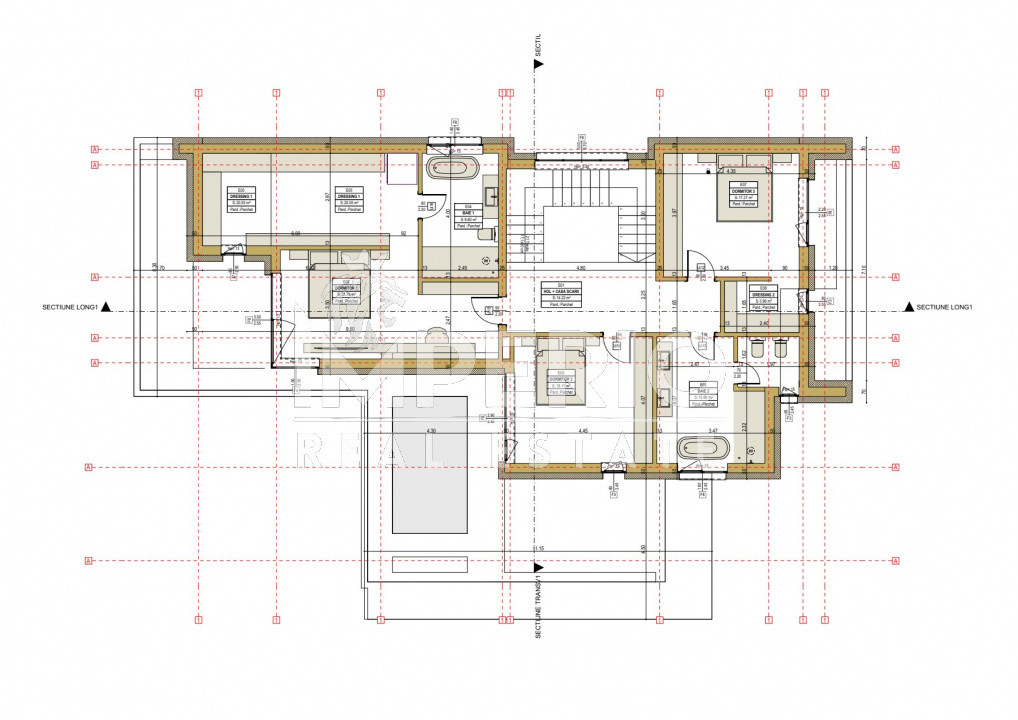
Proprietatea beneficiaza de PUZ aprobat pentru locuinta individuala D+P+E (demisol + parter + etaj) si este incadrata in UTR Lid, cu POT 20% si CUT 0,4, ceea ce permite o suprafata construita desfasurata de aproximativ 566,80 mp.
Utilitatile sunt disponibile la frontul terenului, iar in apropiere exista mijloace de transport in comun, ceea ce asigura acces facil spre oras.
Terenul este situat intr-o zona superba din Faget, linistita si verde, cu vedere frumoasa spre munti, fiind ideal pentru cei care isi doresc o casa intr-un cadru natural, dar aproape de oras.
Pentru mai multe informatii sau programarea unei vizionari, va stau la dispozitie.