

















Casa individuala de vanzare in Chinteni, Cluj – eleganta, spatiu si confort
Va prezentam o proprietate exclusivista, situata intr-o zona linistita din Chinteni, ideala pentru cei care isi doresc intimitate si un cadru natural deosebit.
Imobilul este construit pe 3 nivele (D+P+M), are o suprafata utila de 185 mp si un teren generos de 700 mp, cu un front stradal impresionant de 28 m.
Casa se vinde la stadiul de semifinisat interior si exterior complet finisat, oferind posibilitatea de a personaliza interiorul dupa propriile preferinte.
Compartimentare inteligenta:
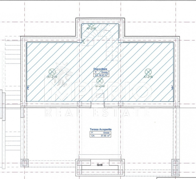
Demisol: o incapere spatioasa multifunctionala si o terasa acoperita.
Parter: living amplu si luminos cu bucatarie open space, 1 camera, 1 baie si hol de acces.
Mansarda: 3 dormitoare generoase, 2 bai, dressing, hol cu acces in pod.
Proprietatea dispune de 2 locuri de parcare in curte, completand confortul unei locuinte bine gandite.
Designul modern, compartimentarea eficienta si suprafata terenului fac din aceasta casa alegerea perfecta pentru o familie care doreste confort, spatiu si un cadru de viata premium, la doar cativa kilometri de Cluj-Napoca.